スタッフブログ
2025.10.25
要注意、お風呂の土台や柱の腐食
在来工法(タイル貼りなど)の浴室は、床や壁の目地、コーキングのわずかな隙間から、長年かけて少しずつ水が浸入しているケースが多くあります。
目に見えない壁の内部で、湿気がこもり、じわじわと土台や柱を侵食していくのです。
このような事態は、特に築年数が経過したお住まい(特に在来工法の浴室)では、決して珍しいことではありません。
見えないところが腐食していたら…と不安を感じるかもしれません
ご安心ください。
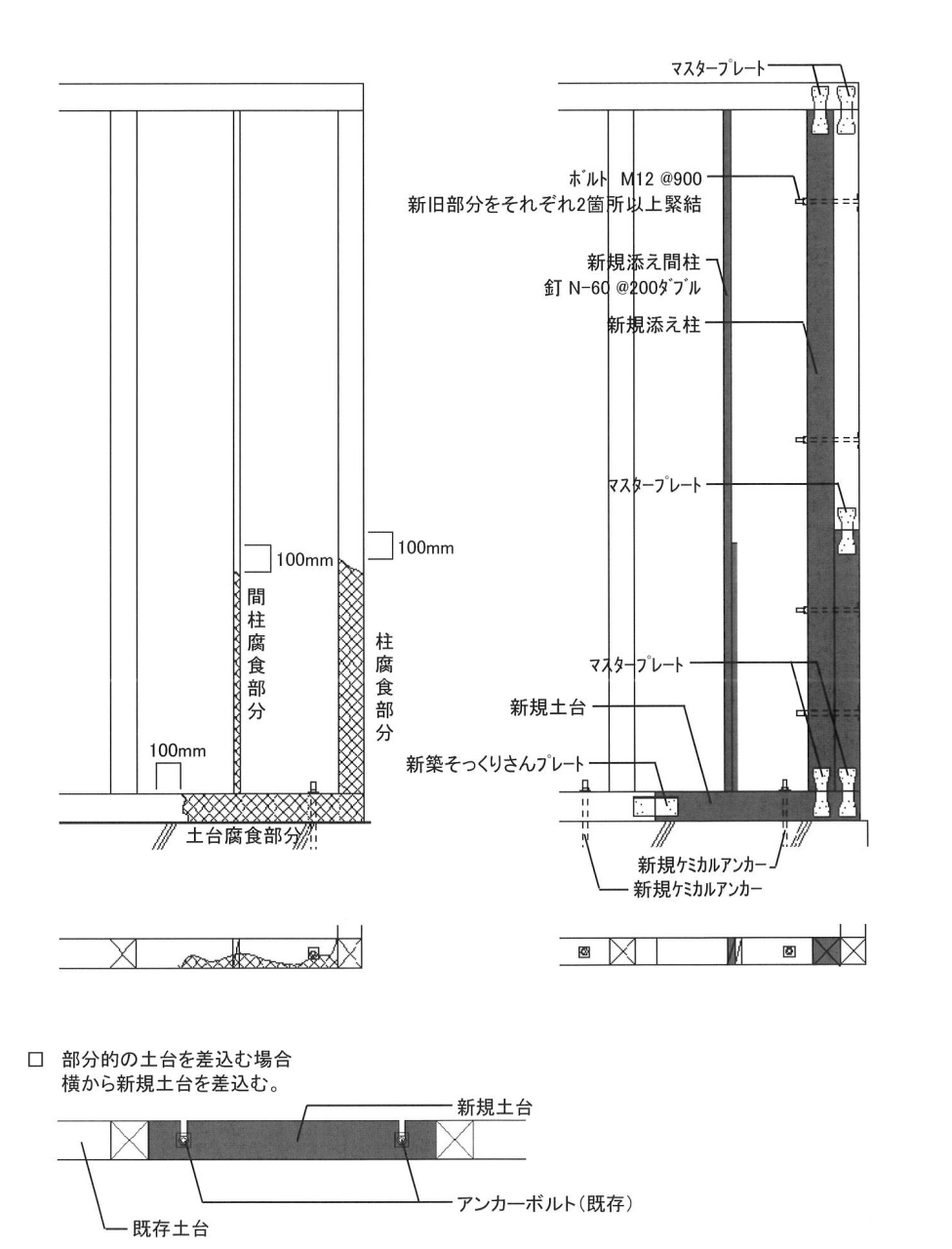
キョーエイ・プライムでは、腐食した土台には新しい土台を接続する工法、
柱には添え柱をする工法で補修していきます。
万が一の事態が起きても、私たちは、お客様のお住まいの「かかりつけ医」として、
責任を持って最後まで万全の対応をお約束します!


